Glazen balustrade profiel 1,0 kN OnLevel TL-6020 – Alu / Zwart / RAL
art.nr.: ONLVL.10.6020.002.10
art.nr.: ONLVL.10.6020.002.10
€ 443,28 - excl. btw € 366,35
Dit balustradeprofiel TL-6020 1,0 kN is uitermate geschikt voor het creëren van een moderne en strakke uitstraling. Het profiel kenmerkt zich door een slank en elegant ontwerp met verhoogde stabiliteit. Uitvoering in natuurlijk geanodiseerd of RAL glanzend, RAL-structuur of RAL mat in uw gewenste kleur.
Bijvoorbeeld RAL 9005 is zwart.
- Slank en elegant ontwerp met verhoogde stabiliteit, onderhoudsarm
- ONLEVEL FLEXFIT glasverstellingssysteemUitgevoerd in onbehandeld / natuurlijk geanodiseerd / RAL glanzend / RAL-structuur / RAL mat / RAL ARMOR (pre-anodiseren) Zwart = RAL 9005
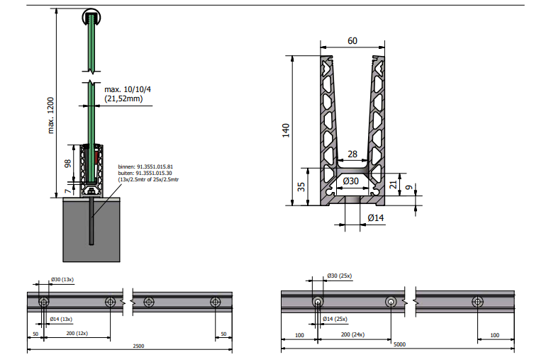
- Profielhoogte: 140 mm
- Breedte: 60 mm
- Voor glasdiktes tussen 12 – 21,52 mm
- Montage: Bovenzijde op de vloer – vloermontage (topmontage)
- Lineaire belasting: 1,0 kN
- Verkoopeenheid: 1 stuk per 2500 mm en 5000 mm
Met OnLevel TL-6020 is het mogelijk om een glazen balustrade te realiseren met vrijwel elk gewenst glasformaat. Hierdoor is dit systeem toepasbaar in uiteenlopende situaties. Het TL-6020 glasprofiel is bij uitstek geschikt voor het creëren van een moderne en strakke uitstraling, zonder concessies te doen aan veiligheid en stabiliteit. De systemen zijn duurzaam, esthetisch verfijnd en bovenal veilig.
Glas is uitstekend geschikt als balustrade, balkonafscheiding of trapleuning. Dankzij de robuuste constructie en hoogwaardige afwerking biedt het TL-6020 profiel een betrouwbare oplossing voor zowel residentiële als commerciële toepassingen. Het systeem voldoet aan alle geldende wet- en regelgeving, waaronder EN1090-1, EN1090-3 en uitvoeringsklasse EXC3.
De installatie van een glazen balustrade met het TL-6020 U-profiel is eenvoudig en efficiënt. Het profiel wordt op de vloer gemonteerd en met gecertificeerde ankers volledig voorgeboord. Vervolgens wordt het glas volgens een duidelijk stap-voor-stap schema geplaatst. Met behulp van het ONLEVEL FlexFit systeem kan het glaspaneel nauwkeurig worden uitgelijnd voor een perfect eindresultaat.
Het profiel is geschikt voor binnen- en buitentoepassing, bestand tegen een lineaire belasting tot 1,0 kN en toepasbaar voor glasdiktes van 12 mm tot 21,52 mm. Daarmee is de TL-6020 een betrouwbare en toekomstbestendige keuze voor moderne glasbalustrades.
Extra benodigd is
- ONLEVEL FlexFit rubberset
Voor het eenvoudig en nauwkeurig vastzetten en uitlijnen van het glas in het profiel.
Geef bij bestelling de juiste glasdikte aan. - Bevestigingsankers (afhankelijk van ondergrond)
Geschikte bevestigingsankers voor montage op beton, staal of hout.- Oppervlakte binnentoepassing: staal verzinkt
- Oppervlakte buitentoepassing: RVS 316
Het benodigde aantal is afhankelijk van de profiellengte en montageafstand.
- Eindkappen links / rechts
Voor een nette en veilige afwerking van het glasprofiel. Links en rechts toepasbaar.
Toe te plassen glas apart bestellen
-
Gehard glas is geschikt voor toepassing op de begane grond
-
Waar doorval gevaar is gehard gelaagd glas
-
Gelaagd glas voorkomt dat men door het glas kan vallen
Gerelateerde producten
incl. 21% btw €
29.95
excl. 21% btw €
24.75
art.nr.: GM-zagen
incl. 21% btw €
448.76
excl. 21% btw €
370.88
art.nr.: ONLVL.10.6021.002.11
incl. 21% btw €
37.12
excl. 21% btw €
30.68
art.nr.: ONLVL.EINDKAP
incl. 21% btw €
765.12
excl. 21% btw €
632.33
art.nr.: ONLVL.10.6030.002.11
incl. 21% btw €
138.58
excl. 21% btw €
114.53
art.nr.: ONLVL.AFDEKKAP
incl. 21% btw €
402.45
excl. 21% btw €
332.60
art.nr.: ONLVL.10.6501.005.10












